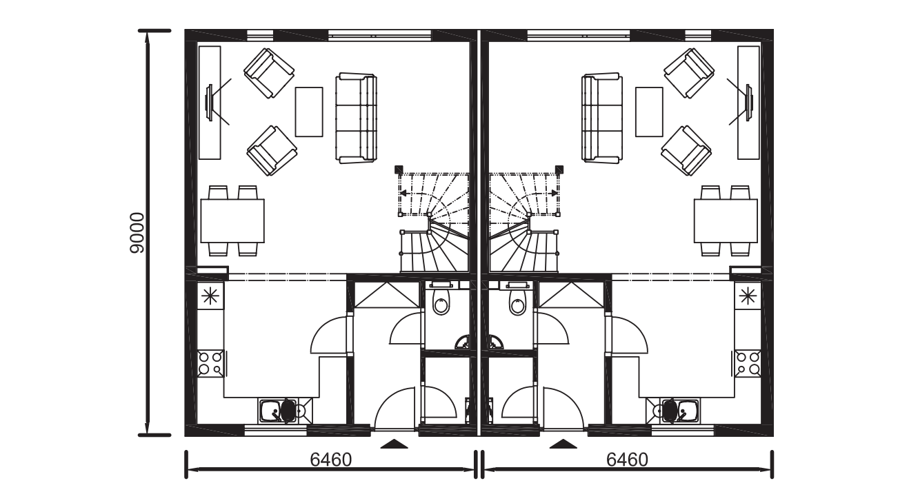
Mangel an Grundstücken und ihre steigenden Preise dürfen Ihren Traum vom eigenen Zuhause nicht bedrohen. Doppelhäuser bieten eine sparsame und smarte Lösung. Hier können zwei Generationen einer Familie oder Verwandte leben, oder eine Wohneinheit kann vermietet werden. Das Erdgeschoss und drei Zimmer im ersten Obergeschoss bieten genug Platz für eine Familie. Ein weiterer Vorteil ist die Möglichkeit, die Eingangszone zu überdachen und eine Garage zu ergänzen. Das Design kann je nach Lage gewählt werden – das Haus wird in drei Ausführungsvarianten angeboten.
Suchbegriff muss mehr als 2 Zeichen haben.








