KUBIS 99 ist ein modernes Einfamilienhaus mit 4 Zimmern + Kochnische mit Möglichkeit einer Erweiterung auf 5 Zimmer und Kochnische.
Suchbegriff muss mehr als 2 Zeichen haben.

Heizung und Warmwasserbereitung wird mit einer Luft-Wasser-Wärmepumpe gesichert.
Die Beheizung der Räume erfolgt über Warmwasser Fußbodenheizung.
Außenjalousien mit Elektrischer Bedienung (Raffstores) für alle Fenster.
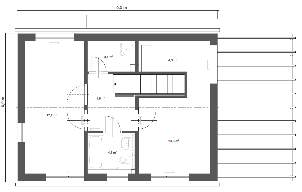
KUBIS 99 ist ein ideales Haus für Familien mit Kindern. Im Erdgeschoss befindet sich eine mit dem Wohnzimmer verbundene Küchenzeile, die einen direkten Zugang zur sonnigen Terrasse ermöglicht. Es gibt auch ein separates Zimmer und ein Badezimmer. Im Dachgeschoss befinden sich 3 weitere geräumige Zimmer und ein praktischer Hauswirtschaftsraum. Das zweite Badezimmer ist selbstverständlich.
Der Grundriss von 9,34 × 6,91 m bietet Ihnen in diesem zweistöckigen Einfamilienhaus knapp 100 m2 Wohnfläche. Darüber hinaus bietet Ihnen KUBIS 631 die Möglichkeit der Erweiterung von 4 + kk auf 5 + kk. Toll ist neben dem Haus auch eine hölzerne Pergola, die als Stellplatz für ein Auto dienen wird.

